Our products About us Contact us
Tel: 002 01146359078
Catalog
Design
Drawings
Gallery
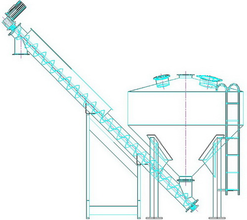
Auger Conveyor
Model AC048
نظـام خـدمــات التصنيــع : سعر أقـل - جودة أعـلي - تصنيـع أسـرع
خط تدوير الإطارات
خط إنتاج الصابون
خط تدوير البلاستيك
More : Products Drawings Designs Recycling Previous